hero-image-0

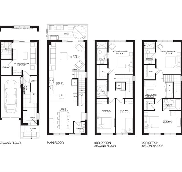
The Oak Plan

The Uplands
Sold
Sold
2
3
1
From 2,007
unit-banner-imageunit-banner-imageunit-banner-image
The Oak Plan details
The Oak Plan is now sold.
Check out available nearby plans below.