hero-image-0

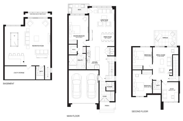
The Cypress Plan

The Uplands
Sold
Sold
3
3
1
From 3,003
unit-banner-imageunit-banner-imageunit-banner-image
The Cypress Plan details
The Cypress Plan is now sold.
Check out available nearby plans below.