hero-image-0

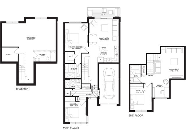
The Bruce Plan

The Uplands
Sold
Sold
3
3
From 1,621
unit-banner-imageunit-banner-imageunit-banner-image
The Bruce Plan details
The Bruce Plan is now sold.
Check out available nearby plans below.