hero-image-0

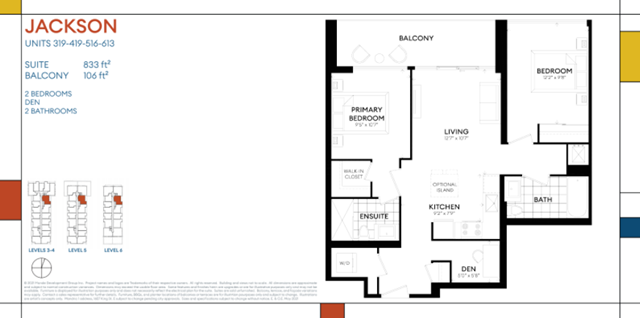
Jackson Plan

Mondria 1
Sold
Sold
2
2
1
From 833
unit-banner-imageunit-banner-imageunit-banner-image
Jackson Plan details
Jackson Plan is now sold.
Check out available nearby plans below.

Interested? Receive updates

Stay informed with Livabl updates on new community details and available inventory.