



































Get additional information including price lists and floor plans.
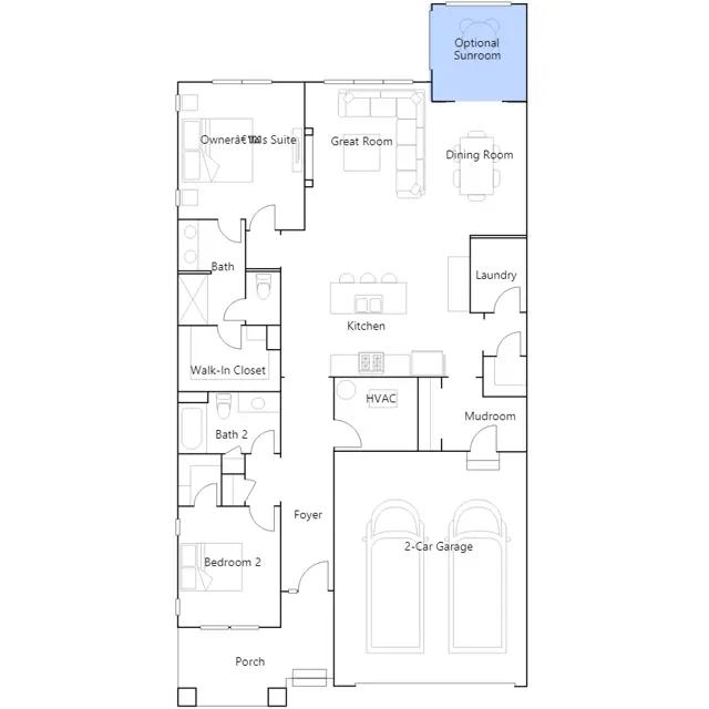
This new townhome showcases an appealing contemporary design thats conveniently laid out on a single level. At its heart is the Great Room, which extends effortlessly to the dining room and modern kitchen in an open-plan layout. This home features a total of two bedrooms including a spacious owners suite with a spa-inspired bathroom and generously sized walk-in closet.
Stay informed with Livabl updates on new community details and available inventory.