hero-image-0

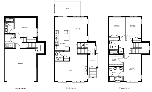
Como Lake Series Plan

By

Polygon Homes

   |   

Tyneridge

Tyneridge
Sold
Sold
unit-banner-imageunit-banner-imageunit-banner-image
Como Lake Series Plan details
Como Lake Series Plan is now sold.
Check out available nearby plans below.