hero-image-0
Skagen
Sold
Sold
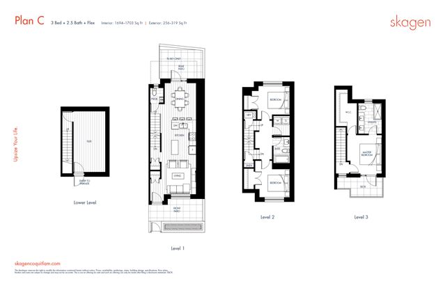
3
2
1
1
From 1,694
unit-banner-imageunit-banner-imageunit-banner-image
C Plan details
C Plan is now sold.
Check out available nearby plans below.