hero-image-0

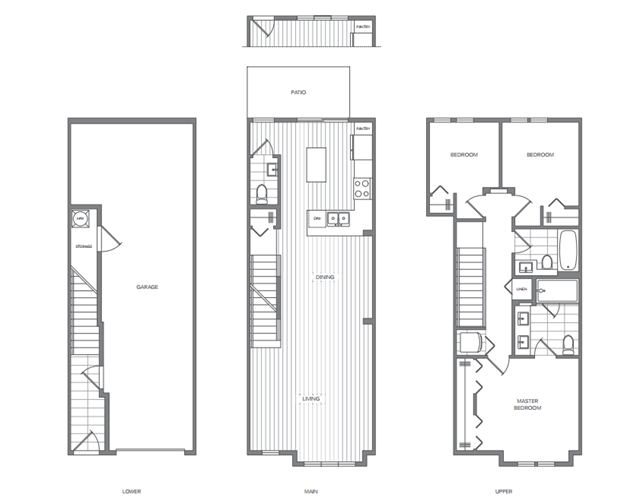
D Plan

RILEY. BY MOSAIC.
Sold
Sold
3
2
1
From 1,307
unit-banner-imageunit-banner-imageunit-banner-image
D Plan details
D Plan is now sold.
Check out available nearby plans below.