hero-image-0

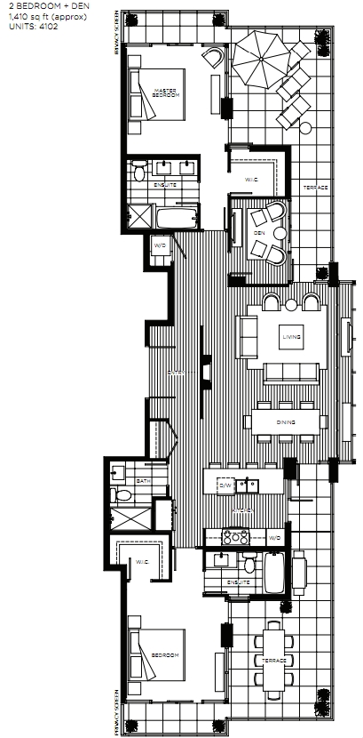
Plan PH4

By

Onni Group

   |   

Oasis

Oasis
Sold
Sold
2
1
From 1,410
unit-banner-imageunit-banner-imageunit-banner-image
Plan PH4 details
Plan PH4 is now sold.
Check out available nearby plans below.