hero-image-0

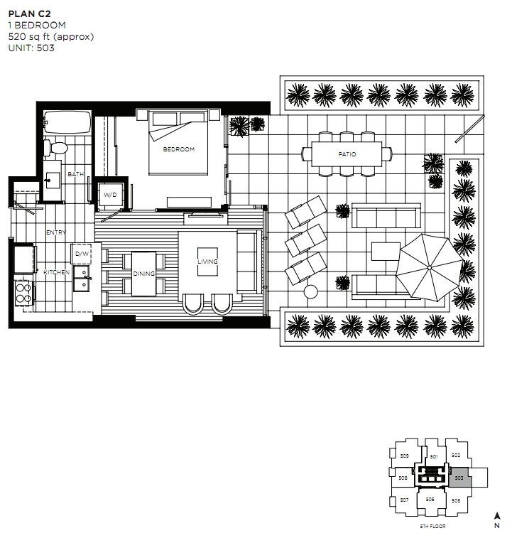
Plan C2

By

Onni Group

   |   

Oasis

Oasis
Sold
Sold
1
From 520
unit-banner-imageunit-banner-imageunit-banner-image
Plan C2 details
Plan C2 is now sold.
Check out available nearby plans below.