hero-image-0

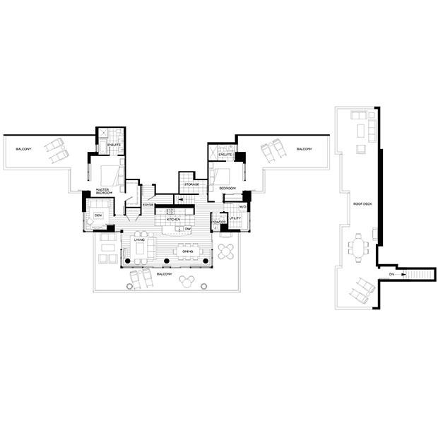
PH1 Plan

1123 Westwood Condos
Sold
Sold
2
1
From 1,425
unit-banner-imageunit-banner-imageunit-banner-image
PH1 Plan details
PH1 Plan is now sold.
Check out available nearby plans below.