
















































































































































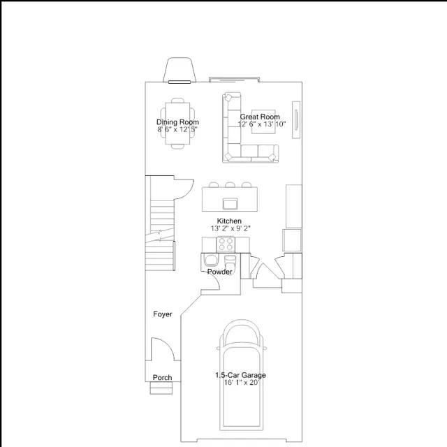
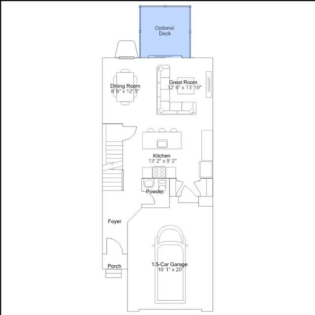
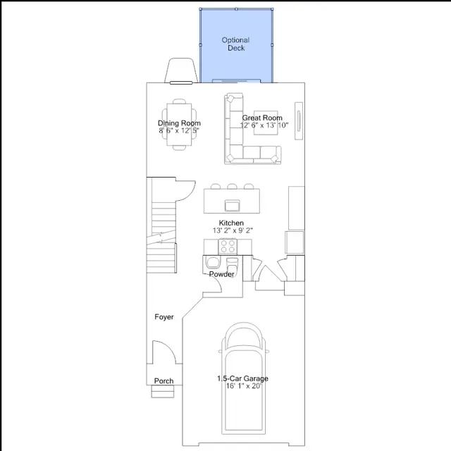
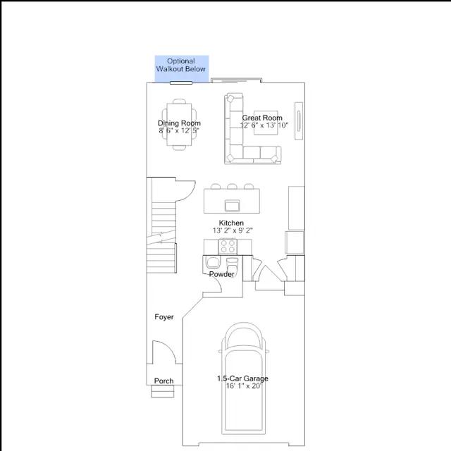
This two-story home features a modern, open-concept layout situated among the kitchen, dining room and Great Room with an attached deck, perfect for seamless everyday living. Upstairs is a central loft area well-suited for a reading nook or home office space, surrounded by a spacious laundry room and two secondary bedrooms each with a convenient closet. In a private corner, the owners suite showcases an adjoining bathroom and a large walk-in closet. Completing the home are a 1.5-car garage and large basement filled with endless possibilities. Plus with Lennar's Everything's Included program, this home delivers upgrades and features at no extra cost.