

































































Get additional information including price lists and floor plans.
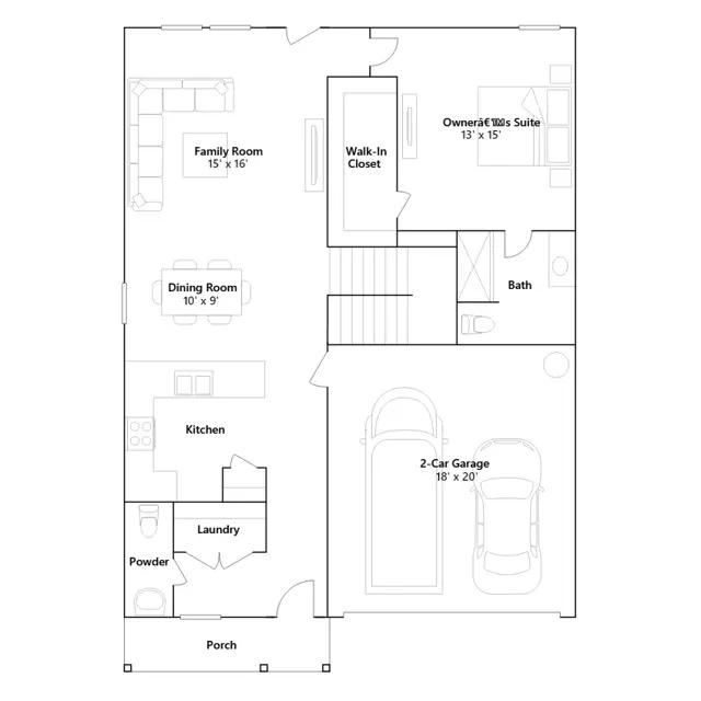
This single-level home showcases a spacious open floorplan shared between the kitchen, dining area and family room for easy entertaining. An owners suite enjoys a private location in a rear corner of the home, complemented by an en-suite bathroom and walk-in closet. There are two secondary bedrooms at the front of the home, which are comfortable spaces for household members and overnight guests.
Stay informed with Livabl updates on new community details and available inventory.