hero-image-0
hero-image-1
hero-image-2
hero-image-3
Water Crest on Lake Conroe 50s
Sold
Sold
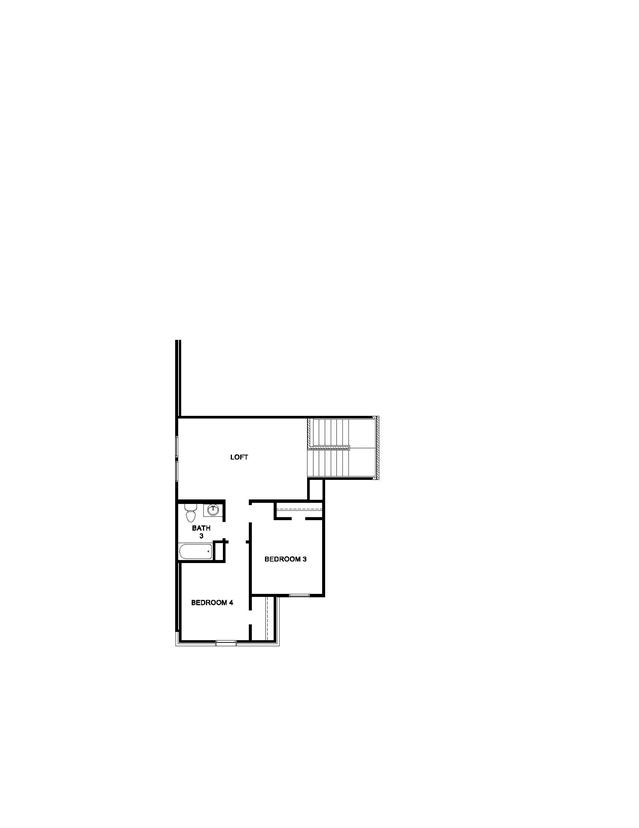
4
3
From 2,170
unit-banner-imageunit-banner-imageunit-banner-image
Plan E40M details
Plan E40M is now sold.
Check out available nearby plans below.