
























































Get additional information including price lists and floor plans.
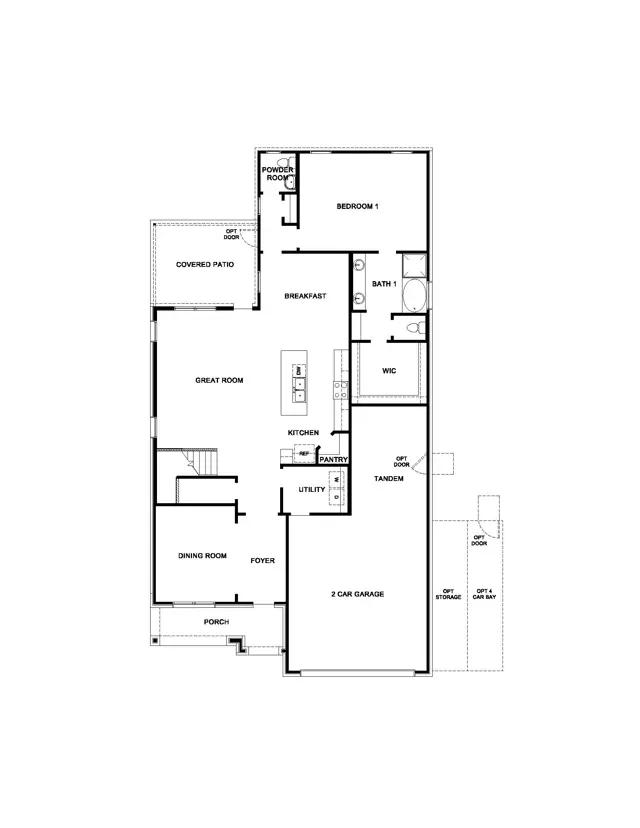
You have arrived at the Diamond/3260 plan, located at the new Silverthorne community! Upon arrival of this 3,279 square foot home, you will notice the cozy front porch, the four-car garage, and all the stunning windows of the house. This home features four bedrooms along with a game room, a media room, and two-and-a-half bathrooms. As you enter the home you will immediately notice a front room that can double as either a dining room or study with nice vinyl floors. Light streams into this room, making it glow with the Suns radiance. Continuing through the first floor, you will notice a big utility room with space for a washer, dryer, and some storage. A storage closet sits opposite the utility room, and adjacent to the closet is the carpeted stairway. At the end of the foyer is the living space, breakfast area, and L-shaped kitchen. The breakfast area is unique...
Stay informed with Livabl updates on new community details and available inventory.