hero-image-0
hero-image-1

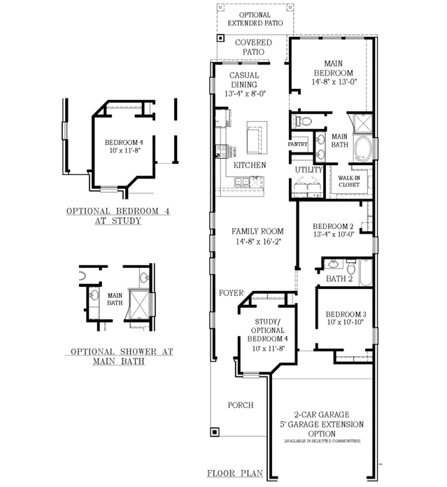
Berkeley Plan

By

Chesmar Homes

   |   

Evergreen

Evergreen
For sale
For sale
From $346,990
1
3
2
From 1,683
Berkeley Plan details

Contact sales center

Get additional information including price lists and floor plans.

Available homes

Interested? Receive updates

Stay informed with Livabl updates on new community details and available inventory.