






















































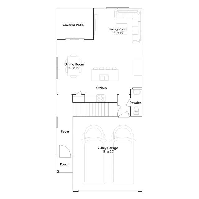
This new two-story townhome design combines comfort and style. The first floor features an open-concept layout connecting a living room for shared moments, a dining room for memorable meals and a kitchen for inspired cooks. Nearby sliding glass doors provide access to a covered patio for outdoor enjoyment. On the second floor, two secondary bedrooms and a spacious owners suite with a luxe bathroom and large walk-in closet provide restful retreats for family members and overnight guests.
Stay informed with Livabl updates on new community details and available inventory.