













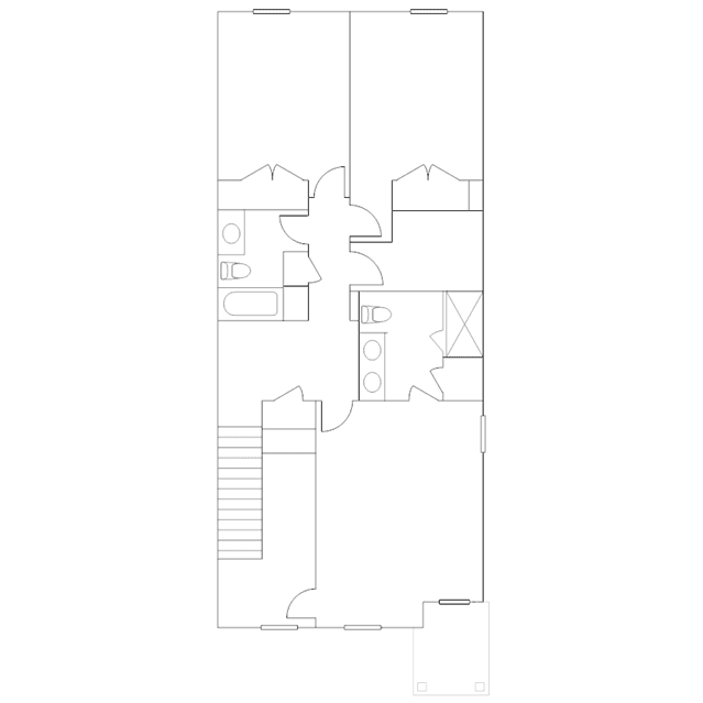
This new two-story townhome has a classic layout that makes efficient use of the available space. The front door leads to a flexible open living area that is great for relaxing and entertaining guests with a kitchen, dining room and Great Room all in one space. Upstairs are three bedrooms, including the owners suite, which has a private bathroom.