


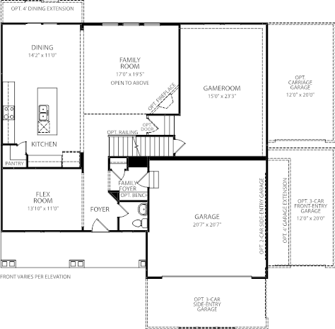
The Alden presents open, spacious living in a comfortable 2-story plan that's designed with your needs in mind. From the open foyer, you'll find a flex room that can be used as a private library or formal dining room. An open arrangement of the family room with optional corner fireplace, kitchen with generous serving island and dining area is a great space for relaxing or entertaining. You'll step down from the family room area to an enormous gameroom, which will be a favorite among family and friends. Upstairs is a secluded primary suite with a luxury bath and large walk-in closet. You'll love the convenience of having a second-floor laundry room. And you can personalize the Alden to suit your family's needs with a variety of options, including a sunroom off the main floor dining area, a first floor guest suite and an optional pass through fr...