



































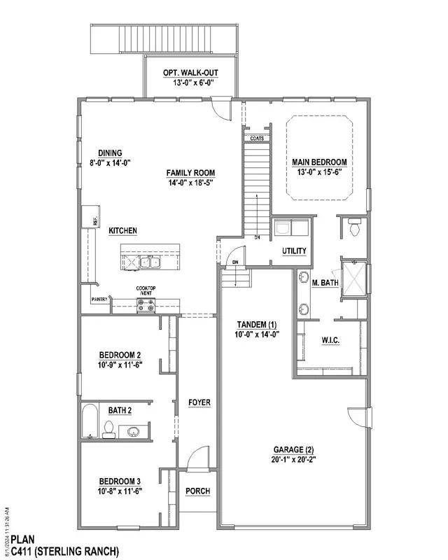
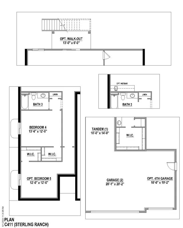
The C411 has three bedrooms, two bathrooms and a three-car tandem garage. When you enter this home, you're greeted by an open foyer and easy access to the two secondary bedrooms and bath. The kitchen features a large pantry and an oversized island with generous seating. The open great room can feature an option of several eye-catching fireplace layouts. You'll also enjoy large windows that fill the living space with natural light. The main suite is complete with a large main bath with split vanities and a walk-in closet. The three-car tandem garage is great for extra storage for all the family's toys or as a work area. This home comes standard with an unfinished basement with several pre-set options to finish the space adding square footage to your home.