New Homes for Sale
Articles
Professionals
Log in
Sign up
Photos 12
Videos 0
Map
Interactive floor plan 0
Virtual 0
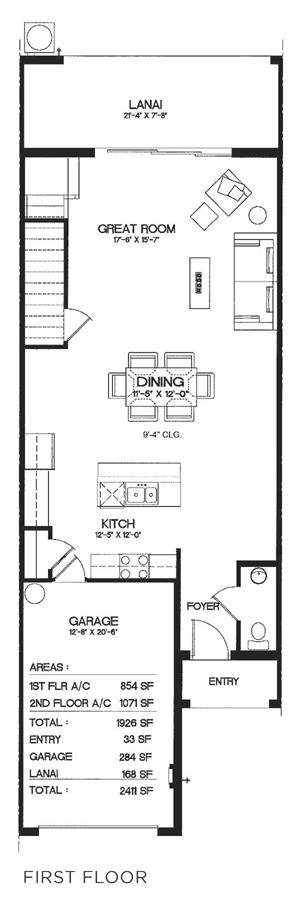
Ficus Plan
By
Toll Brothers
   |  Â
Hamilton Place
Community
Available homes
Get updates
Save
Request info
Request info
Community
Available homes
Request info
Get updates
Save
Request info
Hamilton Place
Get updates
Request info
Sold
Sold
3
2
1
From 1,926
Ficus Plan details
Address:
Â
Collier County, FL 34109
Plan type:
Â
Two+ Story
Beds:
Â
3
Full baths:
Â
2
Half baths:
Â
1
SqFt:
Â
From 1,926
Ownership:
Â
Fee simple
Interior size:
Â
From 1,926 SqFt
Lot pricing included:
Â
Yes
Ficus Plan is now sold.