hero-image-0
hero-image-1
hero-image-2

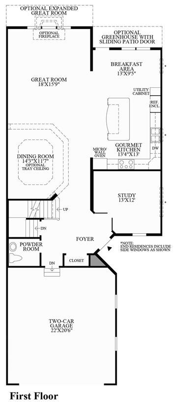
170 Iron Hill Way

White Springs at Providence
Sold
Sold
3
2
1
2,700
170 Iron Hill Way details
170 Iron Hill Way is now sold.
Check out available nearby townhomes below.