hero-image-0
hero-image-1
hero-image-2
hero-image-3
hero-image-4

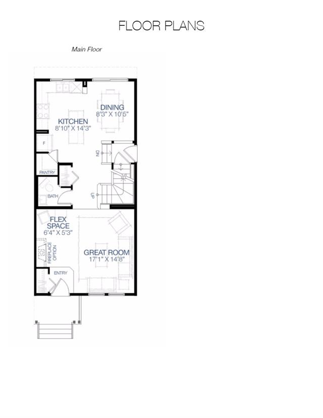
Linden Plan

Single Family Homes in Firesid...
Sold
Sold
2
2
1
From 1,344
unit-banner-imageunit-banner-imageunit-banner-image
Linden Plan details
Linden Plan is now sold.
Check out available nearby plans below.