

























































Images coming soon
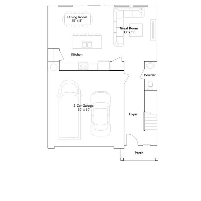
This new two-story home is ready for modern lifestyles. An inviting open-concept layout makes up the first floor, blending the kitchen, living and dining areas for seamless transitions and everyday multitasking. All four bedrooms are located on the second level, including a luxe owners suite featuring a full bathroom and walk-in closet.
Stay informed with Livabl updates on new community details and available inventory.