hero-image-0
hero-image-1
hero-image-2
hero-image-3
hero-image-4
hero-image-5
hero-image-6

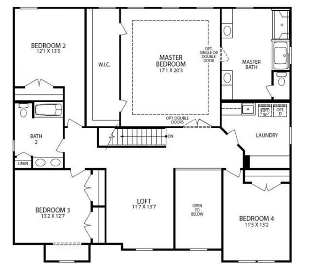
Arthur Plan

The Reserve At Twin Lakes
Sold
Sold
3
2
From 3,402
Arthur Plan details
Arthur Plan is now sold.
Check out available nearby plans below.