hero-image-0
hero-image-1
hero-image-2
hero-image-3
hero-image-4
hero-image-5
hero-image-6
hero-image-7
hero-image-8
hero-image-9
hero-image-10
hero-image-11
hero-image-12
hero-image-13
hero-image-14
hero-image-15
hero-image-16
hero-image-17
hero-image-18
hero-image-19
hero-image-20
hero-image-21
hero-image-22
hero-image-23
hero-image-24
hero-image-25
hero-image-26

COLUMBUS Plan

By

D.R. Horton

   |   

Woodyard Station Townhomes

Woodyard Station Townhomes
Sold
Sold
3
3
2
1
From 1,962
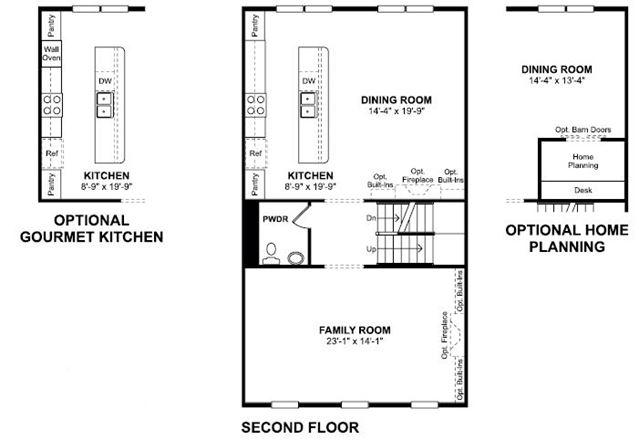
COLUMBUS Plan details
COLUMBUS Plan is now sold.
Check out available nearby plans below.