


























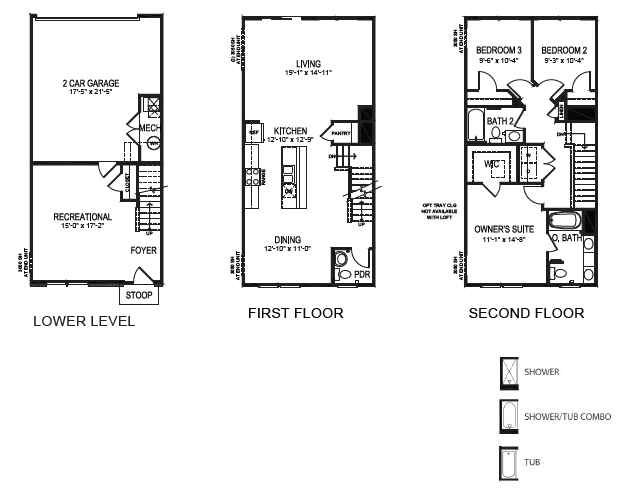
The popular Colombus design features 3 bedrooms, 2 bathrooms, and a 2-car garage. You will love the stainless steel appliances, spacious eat-in island, and recessed kitchen lighting. Create the entertainment center or home office of your dreams in your bonus lower level rec room. The upper level features 2 secondary bedrooms and a large master bedroom made for relaxation; walk-in closet and ensuite with ample natural light. Your new home also includes our smart home technology package, allowing you to monitor and control your home from the couch or across the globe!