hero-image-0

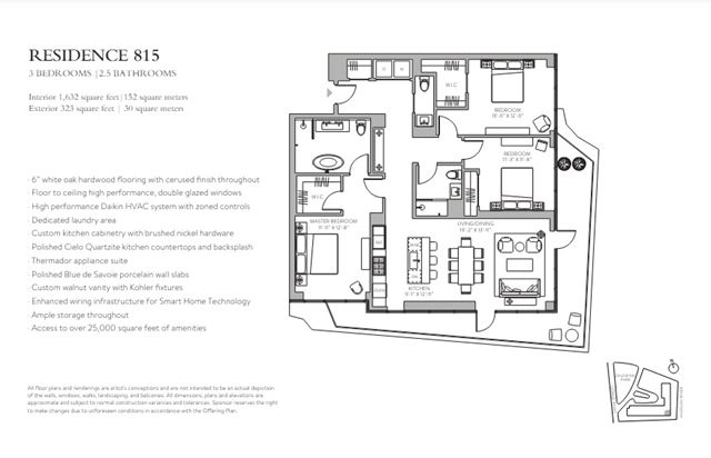
Unit 815

One Park Condos
Sold
Sold
3
2
1
1,632
Unit 815 details
Unit 815 is now sold.
Check out available nearby condos below.