


























































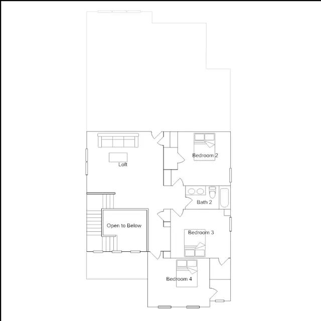
This two-story home offers convenient comfort. Walk through the foyer on the first floor into the family room, kitchen and dining room arranged in an open floorplan. A study provides an at-home workspace while the owners suite is situated in the back corner of the home. Three more bedrooms and a loft are located on the second floor.
Stay informed with Livabl updates on new community details and available inventory.