hero-image-0
hero-image-1
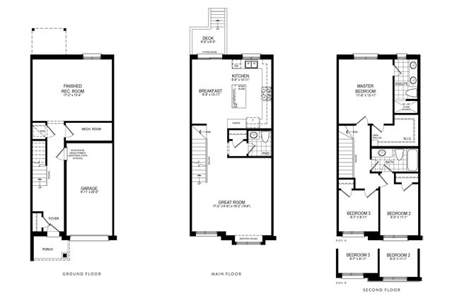
Modern Towns at Kingsview Ridg...
Sold
Sold
3
2
1
From 1,841
unit-banner-imageunit-banner-imageunit-banner-image
T4 Plan details
T4 Plan is now sold.
Check out available nearby plans below.