hero-image-0

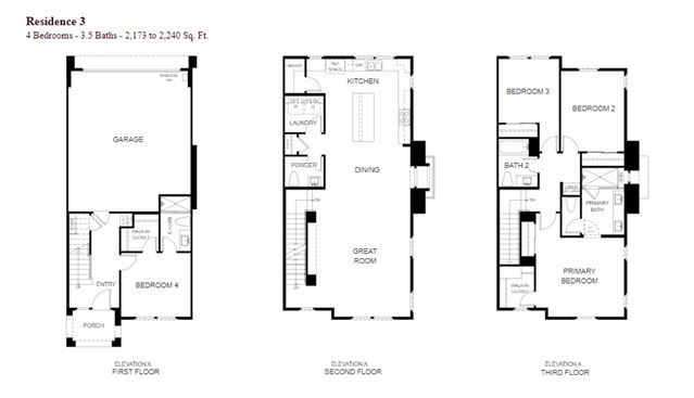
Residence 3 Plan

By

Intracorp USA

   |   

Docente

Docente
Sold
Sold
4
3
1
From 2,173
unit-banner-imageunit-banner-imageunit-banner-image
Residence 3 Plan details
Residence 3 Plan is now sold.
Check out available communities below.