

































































Get additional information including price lists and floor plans.
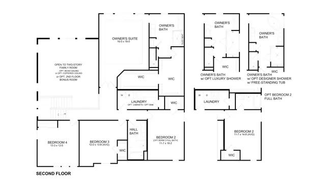
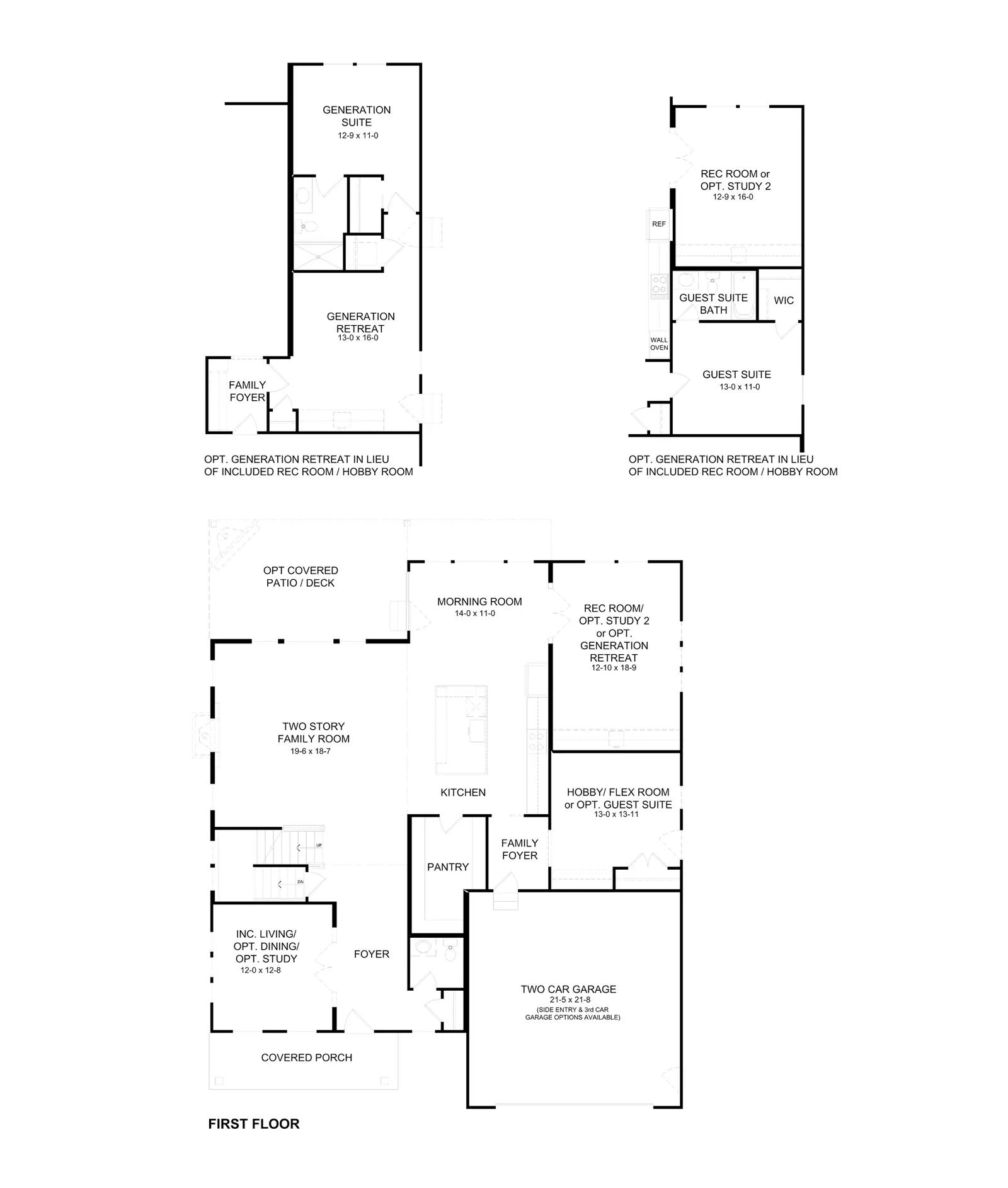
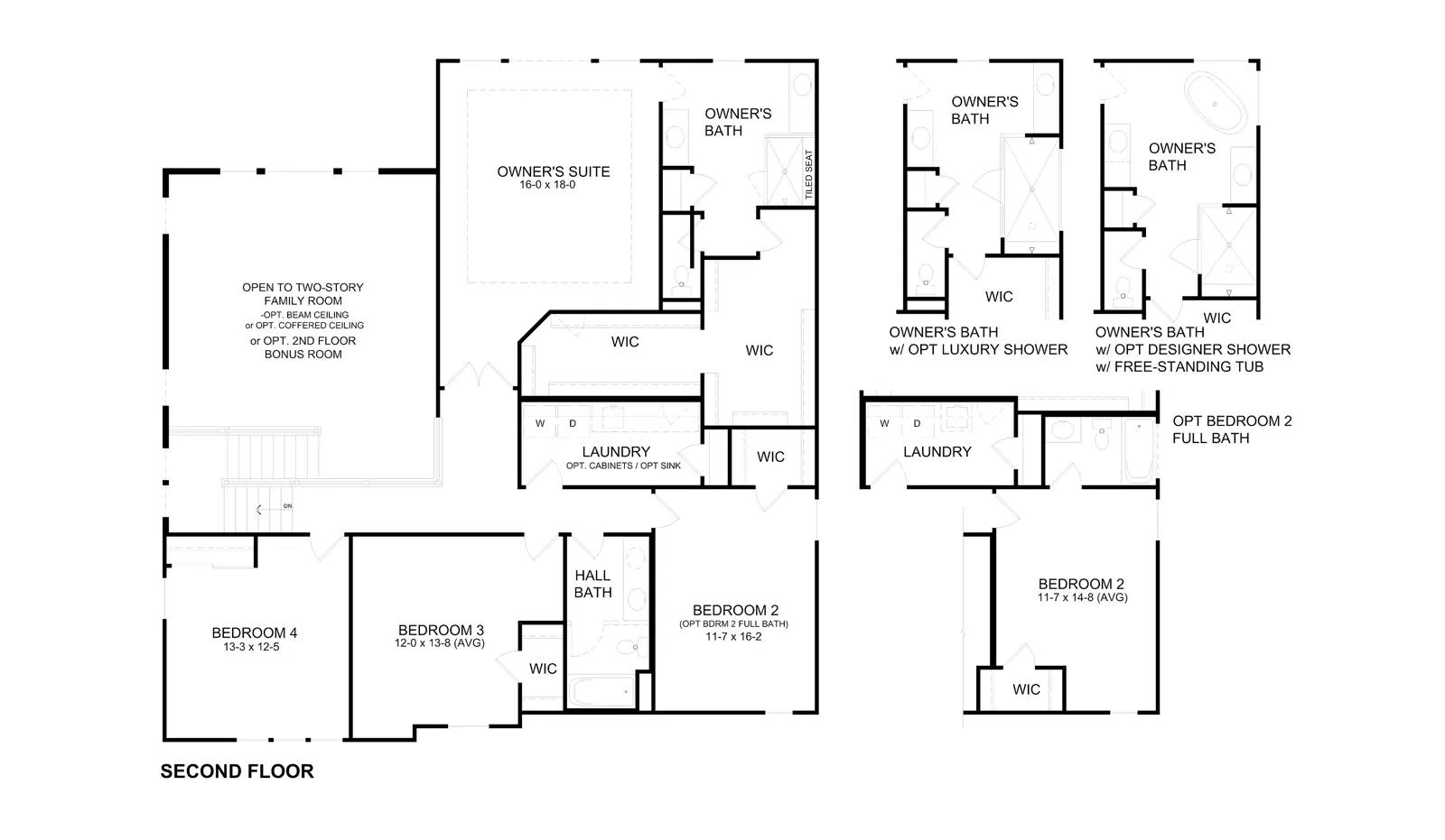
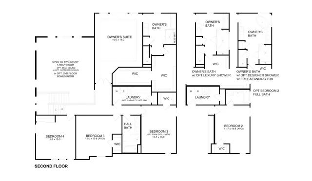
The Pearson by Fischer Homes offers unparalleled versatility with a design that adapts to your lifestyle. The home features 9-foot ceilings on the first floor and an inviting, open foyer that leads to a two-story family room. The centralized kitchen boasts a large island and pantry, with options for a prep space to enhance functionality. A secondary flex space and a spacious rec room provide additional living areas, with options to include a first-floor wet bar or transform the space into a generation retreat with a private entry or a guest suite. The primary suite offers a luxurious escape with one of the largest walk-in closets. Optional shared bath configurations further enhance the Pearsons adaptability, making it the perfect choice for modern living.
Stay informed with Livabl updates on new community details and available inventory.