










































Get additional information including price lists and floor plans.
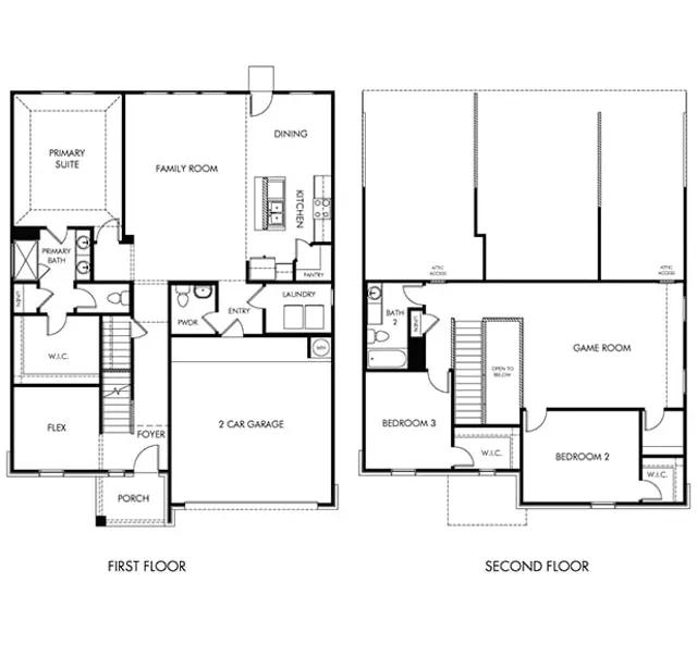
Unwind in the McKinnon's main level primary suite, complete with a luxurious bath and spacious walk-in closet. In the kitchen, the island serves as a convenient breakfast bar and handy prep space. Everyone will love the sprawling game room upstairs.
Stay informed with Livabl updates on new community details and available inventory.