
















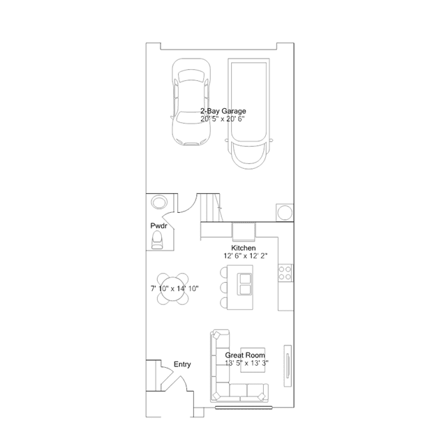
The first level of this two-story townhome is host to a spacious open floorplan shared between the kitchen, Great Room and dining area. All three bedrooms occupy the second level, including the luxurious owners suite which is comprised of a comfortable bedroom, spa-inspired bathroom and walk-in closet.