















Images unavailable
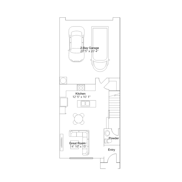
The first level of this two-story townhome is host to a generous open floorplan, shared between the Great Room and kitchen. All three bedrooms are found upstairs, including the luxurious owners suite which is comprise of a restful bedroom, en-suite bathroom and walk-in closet.