New Homes for Sale
Articles
Professionals
Log in
Sign up
Photos 1
Videos 0
Map
Interactive floor plan 0
Virtual 0
B Plan
By
Ranquist Development Group
|
Basecamp SFH
Community
Available homes
Get updates
Save
Request info
Request info
Community
Available homes
Request info
Get updates
Save
Request info
Basecamp SFH
Get updates
Request info
Sold
Sold
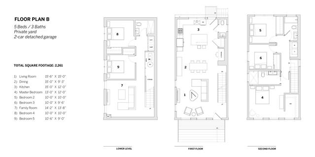
5
3
From 2,261
B Plan details
Address:
Chicago, IL 60641
Plan type:
Detached Two+ Story
Beds:
5
Full baths:
3
SqFt:
From 2,261
Ownership:
Fee simple
Interior size:
From 2,261 SqFt
Lot pricing included:
Yes
B Plan is now sold.