

































































Get additional information including price lists and floor plans.
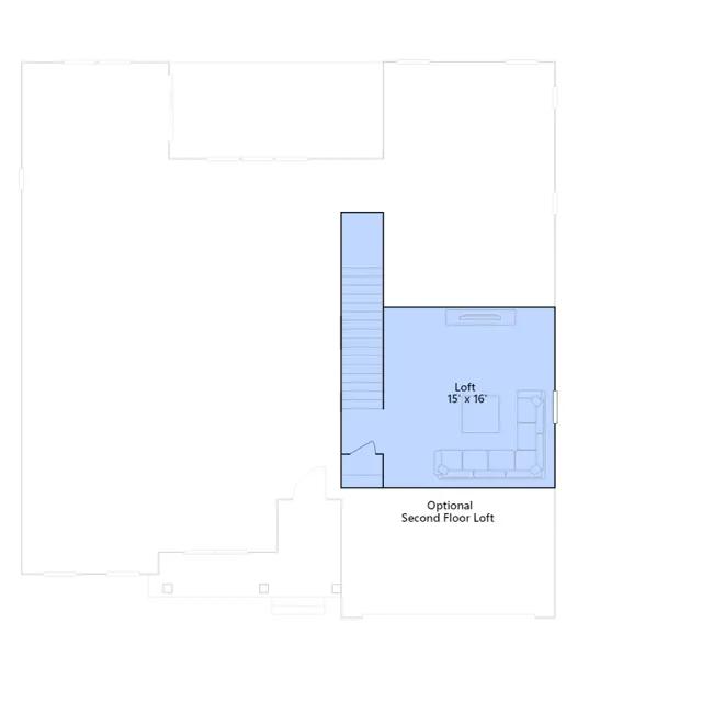
This new single-story home features an unfinished basement offering limitless recreation and entertaining opportunities, with the option to include a loft or secondary bedroom over the garage. An inviting open-concept floorplan features convenient access to a covered patio. Two secondary bedrooms are located near the front off the foyer of the home, and the luxurious owners suite is nestled into a private rear corner, complete with a spa-inspired bathroom.
Stay informed with Livabl updates on new community details and available inventory.