


































































































Get additional information including price lists and floor plans.
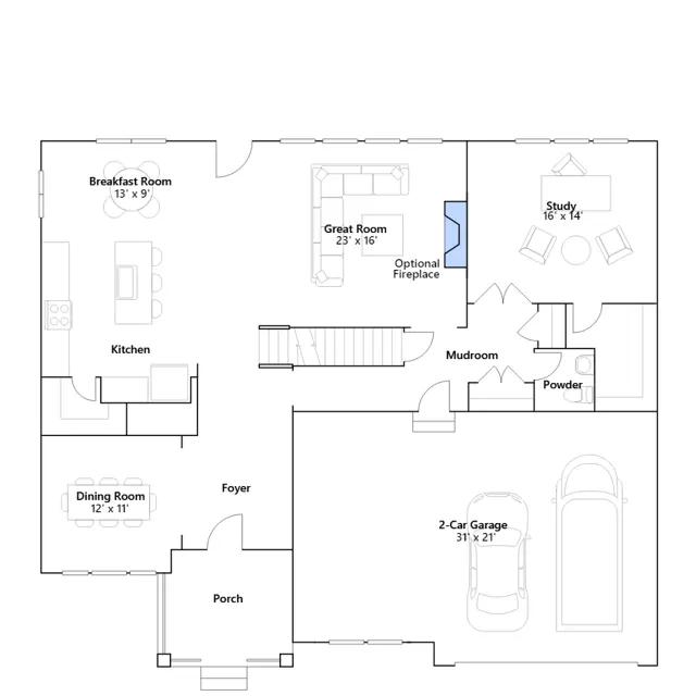
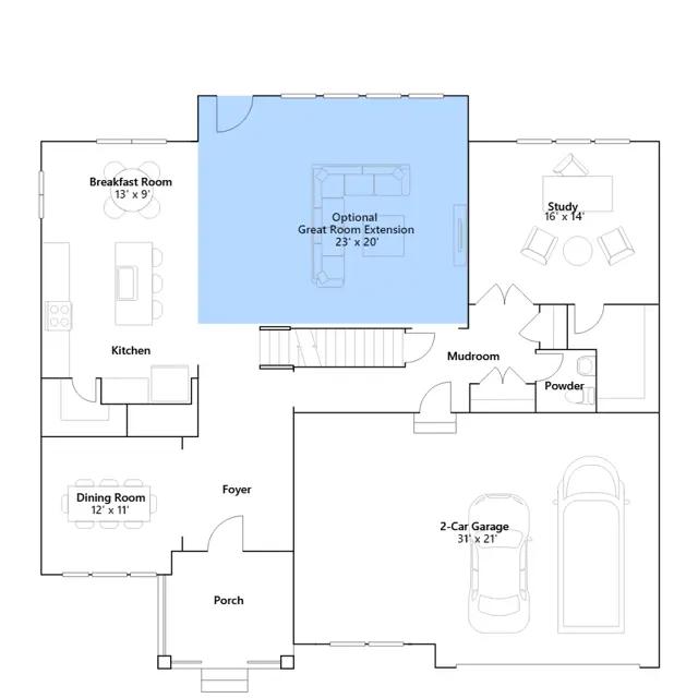
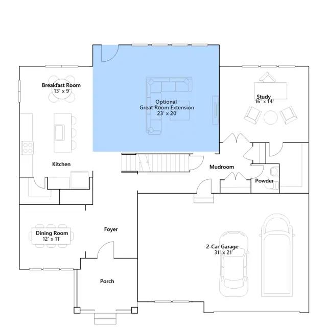
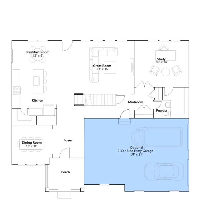
This new two-story home showcases an appealing modern design, with a two-car garage for added convenience. The first floor features an open-plan layout among the Great Room, multi-functional kitchen and casual breakfast room, plus a formal dining room and a secluded study. The second floor hosts a loft that adds shared-living space to the home and four bedrooms including a lavish owners suite. An unfinished basement offers versatility.
Stay informed with Livabl updates on new community details and available inventory.