

























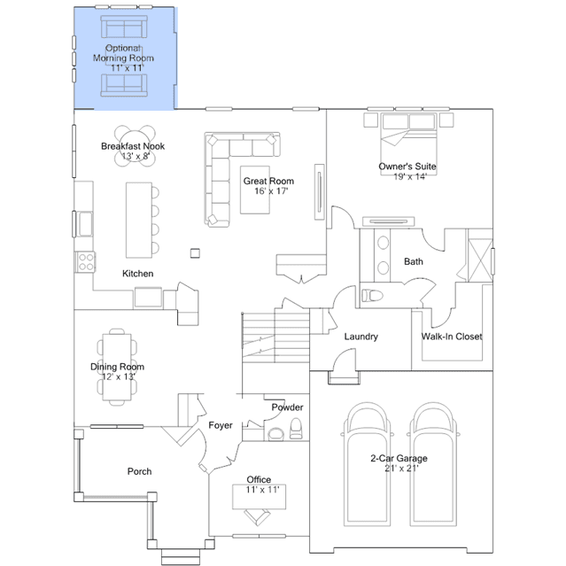
This new two-story home features a spacious first-floor owners suite with a spa-like bathroom and large walk-in closet. The main living area showcases an open-design concept with a kitchen with a large center island opening to the Great Room and breakfast area. A formal dining room is just past the kitchen, while a home office and powder room are tucked away off the foyer. Upstairs are three large secondary bedrooms, two with walk-in closets and one with its own full bathroom, as well as a hall bathroom. An unfinished basement can be completed for additional living space.