




































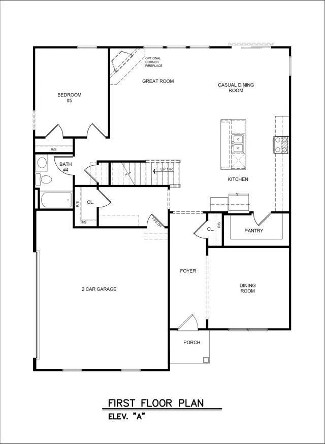
The Summit floorplan offers a generous 3,150 sqft of living space across two floors, providing ample room for families of all sizes. The main level features a first-floor bedroom and full bathroom, an office or formal dining room, and a beautiful kitchen that opens to the great room, filled with natural light. The gourmet kitchen is a standout with a large kitchen island, quartz countertops, soft-close cabinets, and premium stainless steel appliances, including double ovens, gas cooktop, Whirlpool appliances, and a walk-in pantry. This modern kitchen is perfect for both cooking and entertaining. Upstairs, the owners suite offers a huge walk-in closet, double vanities, a relaxing bathtub, and a separate shower, providing the perfect retreat. Additionally, the second floor features 3 spacious bedrooms, 2 full bathrooms, a laundry room, and an open loft area, of...
Stay informed with Livabl updates on new community details and available inventory.