hero-image-0
K. Hovnanians Four Seasons at ...
Sold
Sold
2
2
1
1,900
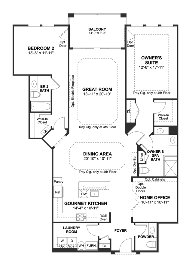
4000 Heron's Nest Way, Unit 33 details
4000 Heron's Nest Way, Unit 33 is now sold.
Check out available nearby condos below.

Interested? Receive updates

Stay informed with Livabl updates on new community details and available inventory.