
























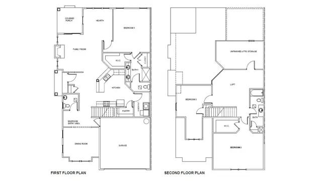
The Nansemond, our two-story townhome featuring 2,557 square feet, three bedrooms, two and one-half baths, flex spaces, and a two-car garage. The first-floor primary bedroom and bath offers two large closets, counter-height quartz double vanity, separate water closet, and a walk-in tiled shower with glass enclosure. As you enter the front door, you are greeted with an open-floor plan with an abundance of natural light. The Nansemonds spacious kitchen with bar area open to the living room and hearth area features quartz counters, stainless appliances, tile backsplash, walk-in pantry and adjacent laundry room. The powder room is conveniently located on the first-floor with a nearby coat closet and access to the two-car garage. The versatile flex space downstairs could be an office or dining room. A covered rear porch offers an outdoor retreat overlooking the landsc...
Stay informed with Livabl updates on new community details and available inventory.