hero-image-0
hero-image-1
hero-image-2
hero-image-3

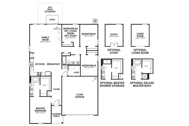
Danbury Plan

By

M/I Homes

   |   

The Farms

The Farms
Sold
Sold
4
2
From 1,622
Danbury Plan details
Danbury Plan is now sold.
Check out available nearby plans below.