hero-image-0
hero-image-1

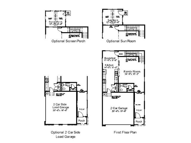
Saluda River Plan

By

D.R. Horton

   |   

Stafford

Stafford
Sold
Sold
3
2
1
From 2,029
unit-banner-imageunit-banner-imageunit-banner-image
Saluda River Plan details
Saluda River Plan is now sold.
Check out available nearby plans below.