hero-image-0
hero-image-1
hero-image-2
hero-image-3

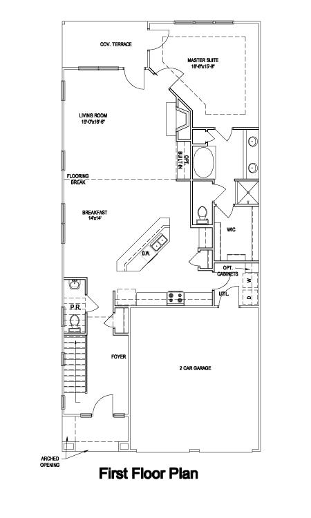
The Hewitt Plan

By

D.R. Horton

   |   

San Simeon

San Simeon
Sold
Sold
3
2
1
From 1,820
unit-banner-imageunit-banner-imageunit-banner-image
The Hewitt Plan details
The Hewitt Plan is now sold.
Check out available nearby plans below.