





























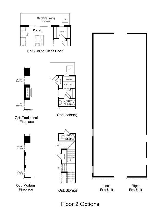
The Vail II is a three-story new build Charlotte townhome with optional rooftop sky terrace. The first-floor entrance opens into a spacious flex room with stairs leading up from the foyer to the open-concept core of the home. The two-car garage and convenient drop zone are also accessed from the ground floor. On the second level, the gathering room, casual dining area and gourmet kitchen are seamlessly aligned with additional living space available outdoors on the deck, which is accessed between the kitchen and the walk-in pantry. An adjacent powder room is available for the homeowners and visitors. Available options include the addition of an inviting fireplace in the gathering room, and a multi-slide glass door, allowing for the Vail II plan to be easily personalized for your needs. The third floor features all 3 bedrooms, including the well-appointed owners...