





Get additional information including price lists and floor plans.



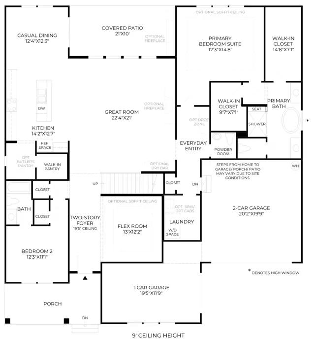
Step into the Nora and take in the stunning two-story foyer and bright flex room, which offer views to the expansive great room and casual dining area with rear yard access. The beautiful, well-appointed kitchen features a large center island with breakfast bar, ample counter and cabinet space, a sizable walk-in pantry, and a convenient workspace perfect for charging devices during mealtimes or grabbing a snack or drink between meetings. The elegant primary bedroom suite comes equipped with dual walk-in closets and spacious primary bath with dual vanities, large soaking tub, luxe shower with seat, and private water closet. Upstairs, you ll find a generous loft, three additional bedrooms with walk-in closets, two with a shared bath with dual-sink vanity, and one with a shared hall bath. Additional highlights include a versatile first-floor bedroom with closet and ...
Stay informed with Livabl updates on new community details and available inventory.