



















Get additional information including price lists and floor plans.
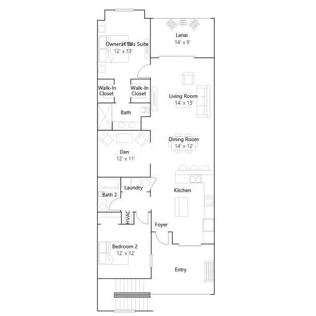
This condo showcases a split design between the open layout and sleeping spaces. On one side, a contemporary design flows the kitchen, dining space and living room together with access to a lanai for outdoor experiences. Adjacent are a secondary bedroom ideal for guests, a private den for a home office and a luxe owners suite with a bedroom and bathroom. Discover a golfers paradise at Webbs Reservewhere active living meets relaxation in a beautiful coastal setting. Experience sparkling pools and premium resort amenitiesall just a golf cart ride away from home.
Stay informed with Livabl updates on new community details and available inventory.