








































Get additional information including price lists and floor plans.
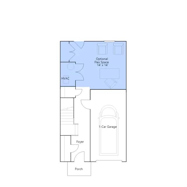
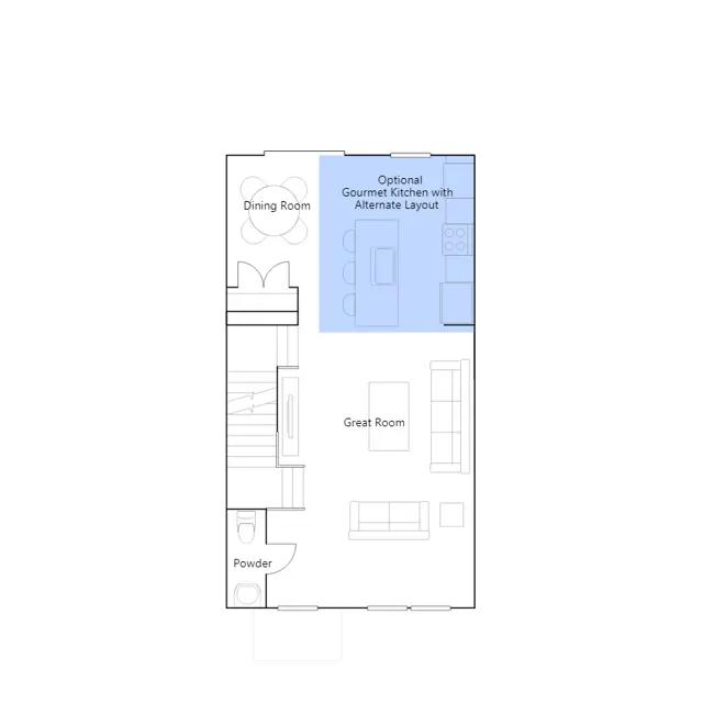
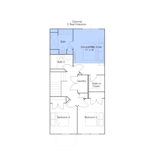
This new three-story townhome design combines comfort and style, with an unfinished recreation room and a one-car garage on the first floor. The second floor showcases an open-plan layout combining a dining room for memorable meals, a kitchen for adventurous cooks and a Great Room for shared moments. The third floor hosts three restful bedrooms including an owners suite with a walk-in closet and luxurious bathroom.
Stay informed with Livabl updates on new community details and available inventory.