































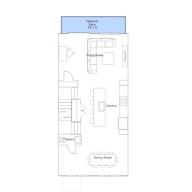
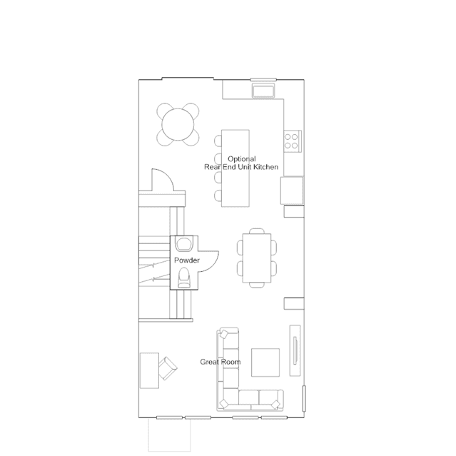
This new three-story townhome design is the epitome of casual elegance. On the first floor, an unfinished recreation room and a one-car garage offer convenience. On the second floor, a lovely dining room flows in an open-concept layout to a multi-functional kitchen and welcoming Great Room. On the third floor, a luxe owners suite and two secondary bedrooms provide restful retreats for family members or overnight guests.
Stay informed with Livabl updates on new community details and available inventory.